Preisträger Landesbaupreis 2018

Preisträger
PRESSE PROGRAMM

Landesbaupreis Kärnten 2016 
Dieses Jahr wurden zwei Landesbaupreise verliehen.
Projekterläuterungen der Juroren Julia Kick, Hannes Sampl, Tobias Hagleitner, Elias Molitschnig und Erich Fercher.

Biohotel Gralhof, Neusach am Weißensee
Bauherr: Familie Knaller
Planer: XBORN Bau Raum Gestaltung (DI Iuna und DI Lukas Negenborn, Graz)

Ein junges Paar gibt das Großstadtleben auf, um den elterlichen Betrieb in Neusach am Weissensee zu übernehmen. Rasch wachsen die beiden in ihre neuen Rollen als Landwirte, Hotel- und Restaurantbetreiber und verstehen die Aufgabe als ganzheitliche Verantwortung: für eine nachhaltige touristische Entwicklung, für die Menschen vor Ort, für die Pflege von Identität und Baukultur. Sie erhalten den bäuerlichen Betrieb und errichten Schritt für Schritt zuerst für sich ein Wohnhaus als Ergänzung des Ensembles, sie bewahren und sanieren ein bestehendes Blockhaus, renovieren und erweitern dann das Erdgeschoß des 520 Jahre alten Haupthauses, um zuletzt dessen Obergeschoße für heutige Ansprüche zu aktualisieren und baulich neu zu ordnen.

Der sorgsam detaillierte gläserne Zubau ans Haupthaus ist Eingangsbereich, Restauranterweiterung und Wohnzimmer für die Gäste. Stahl und Glas verbinden sich innen stimmig und leger mit dem Lärchenholz von Böden, Wandpaneelen und Möbeln, mit dem schwarzen Naturstein von Rezeption und Theke, mit den weißen Wand- und Deckenflächen des Bestands. Die Stühle wurden eigens entworfen und vom Tischler gefertigt, auch die Teppiche und der Großteil der Zimmerausstattung sind keine Stangenware. Neues gesellt sich zu Altem. Je nach formaler und funktionaler Anforderung geschieht das mit Respektabstand oder in enger Überlagerung, immer aber mit Maß und Ziel. Es ist keine Architektur fürs Hochglanzmagazin, nichts für oberflächliche Betrachtung. Es ist Architektur, die von innen her wirkt - in einem konkret räumlichen Sinn, weil die ursprüngliche Außenerscheinung weitgehend erhalten blieb, im übertragenen Sinn, weil in der sehr persönlichen Gestaltungsweise jene Menschen und Geschichten spürbar werden, die diesen Betrieb prägen und beleben. 

Die Angemessenheit der strukturellen Eingriffe und der dafür angewandten Mittel charakterisiert die Verwandlungen am Gralhof. Es ist ein Ort der ausgewogenen Verhältnisse: von Bewahren und Erneuern, von Tourismus und Landwirtschaft, von Bewohnen und Bewirten, von Naturraum und Bebauung. Diese richtige Balance zu finden ist eine seltene und hohe Kunst, sie zu halten der Auftrag für die Zukunft.

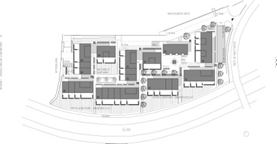
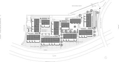
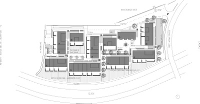
Neues Wohnen an der Glan, Klagenfurt am Wörthersee
Bauherr: FORTSCHRITT - Gemeinnützige Bau-, Wohnungs- und Siedlungsgenossenschaft für Kärnten
Planer: Arch. Mag. arch. Eva Rubin mit Arch. DI Jürgen Wirnsberger und DI Beatrice Bednar  (Klagenfurt / Millstatt) 

Wohnen ist ein staatlich gesichertes Grundrecht, eine gesellschaftliche Verantwortung und ein hohes Gut. Dennoch ist „sozialer Wohnbau“ zu einem Stigma geworden. Insgeheim denken dabei viele an die möglichst günstige Verwahrung der Besitzlosen, an Wohnen fürs Existenzminimum, an öffentlich finanzierte Bauten für jene, die nichts besseres vermögen. Manch Wohnanlage spiegelt diese Haltung, das Kostenargument wird zum Vorwand für gestalterische Lieblosigkeit. Hochwertige Gemeinschafts- und Freiräume, atmosphärische Qualität und Schönheit gelten als unnötiger Luxus.

Die Klagenfurter Wohnanlage an der Glan zeigt, wie es anders geht. Die Verpflichtung zur Sparsam­keit wird erfüllt durch eine Gestaltung ohne jede Eitelkeit, mit einer architektonischen Haltung, die sich nicht an sogenannten Sachzwängen, sondern konsequent an den Bedürfnissen der Menschen orientiert. Spürbar wird das schon außen, beim Durchschreiten der fein definierten Hof- und Platzräume, die die Siedlung durchziehen, beim Anblick der strukturierten Baukörper in ihrer angenehmen Proportion und Höhenentwicklung. Die hohe Aufenthaltsqualität im öffentlichen Raum setzt sich fort in den hellen, großzügig wirkenden Stiegenhäusern und Laubengängen, die eben mehr sind als „Erschließung“. Hier ist Raum für Begegnung, Nachbarschaft, Gespräch. Um die Durch­mischung von Altersgruppen und Lebensstilen zu begünstigen, sind die Wohnungen in ungewöhnlicher typologischer Vielfalt durchformt. Die unterschiedlichen, stets klaren und offenen Grundrisse laden zur individuellen Aneignung ein. Terrassen und Gärten sind weder zu klein noch größer als nötig, um als private Räume im Freien tatsächlich gut und gern genutzt zu werden.

Wohnbau ist Städtebau. Jedenfalls wird das Wohnprojekt an der Glan diesem Anspruch gerecht. Hauptaugenmerk dieser Architektur gilt dem Raum als Gesamtheit, der Einbindung ins bestehende Gefüge, der Platzbildung, der Durchgrünung, den Wegen, den Übergängen, der Orientierung. Dank einer wohldosierten Mischung aus Gestaltungslust und Pragmatismus ist all das möglich, ohne auf jene Annehmlichkeiten und Verfeinerungen in Detail, Material, Farbe, etc. verzichten zu müssen, die einen Wohnbau in Wirklichkeit erst wohnlich machen.

Mehr zum Thema