Kärntner Landesbaupreis 2018
AusstellungDas Land Kärnten, vertreten durch Frau Landeshauptmann-Stellvertreterin Mag.a Dr.in Gaby SCHAUNIG und das Amt der Kärntner Landesregierung, Abteilung 2 - Finanzen, Beteiligungen und Immobilienmanagement, UAbt. Hochbau, lädt mit dem Architektur Haus Kärnten zur Verleihung ein.
Verleihung des KÄRNTNER LANDESBAUPREIS 2018 und des ARCHTEKTURSTIPENDIUMS 2019 am 03.12.2018 um 19.00 Uhr.
Dieses Jahr wurden zwei Landesbaupreise verliehen.
KÄRNTNER LANDESBAUPREIS 2018:
Biohotel Gralhof, Neusach am Weißensee
Bauherr: Familie Knaller
Planer: XBORN Bau Raum Gestaltung (DI Iuna und DI Lukas Negenborn, Graz)
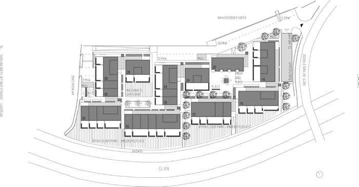
Neues Wohnen an der Glan, Klagenfurt am Wörthersee
Bauherr: FORTSCHRITT - Gemeinnützige Bau-, Wohnungs- und Siedlungsgenossenschaft für Kärnten
Planer: Arch. Mag. arch. Eva Rubin mit Arch. DI Jürgen Wirnsberger und DI Beatrice Bednar (Klagenfurt / Millstatt)
Jury Kärntner Landesbaupreis 2018:
Frau Architektin Dipl.-Ing. Julia Kick, Franz-Michael-Felder-Straße 5a, 6850 Dornbirn
Herr Architekt Dipl.-Ing. Hannes Sampl, Franz Josef Straße 5/3, 5020 Salzburg
Herr Architekt Mag. arch. Tobias Hagleitner, PhD, 4020 Linz
Herr Dipl.-Ing. Elias Molitschnig, Kärntner Landesregierung, Abteilung 3
Herr Dipl.-Ing. Erich Fercher, Kärntner Landesregierung, Abteilung 2
Ausstellung aller eingereichten Projekte von
04.12. - 21.12.2018 und 07.01. - 09.02.2019 Mo – Fr 9 – 18.00 Uhr
(ACHTUNG Winterpause 22.12.2018 – 06.01.2019)
Im Jahr 2018 vergibt das Land Kärnten über Vorschalg einer unabhängigen Fachjury im Bereich Architektur ein Jahresstipendium in der Höhe von 10.500 EURO. Primäres Ziel des Stipendiums ist die Schaffung einer dauerhaften Fördereinrichtung, Die in Verbindung mit den bestehenden Baukultureinrichtungen eine nachhaltige Verbindung und Bindung junger Kärntner ArchitektInnen, sowie ArchitekturstudentInnen an Kärnten bewirkt.
ARCHTEKTURSTIPENDIUM KÄRNTEN 2019:
für die Arbeit „Architektur. Kultur. Landschaft. Nachkriegsmoderne im Alpen-Adria-Raum“
von DI Lukas Vejnik, Bad Eisenkappel
Jury Architekturstipendium Kärnten 2019:
Univ. Prof. Wolfgang Grillitsch
Arch. Mag. Eva Rubin
Arch. DI Todorka Iliova Fritz
Mag. Mario Waste
